Architect Geraldo Angelo Silva Collaborator Gerson Soares Location Montes Claros, Brazil Area 2980 m² Year 2014

The general concept of the building is based on a simple and fast construction that guarantees maximum environmental qualification. The plan organization proposes the creation of a vegetal “barrier” around the masonry, this retreating possibility a better ambience to the places of study and permanence. Higher conditions through the central churchyard make the hot air move from the Library.


The architectural project for the COMMUNITY LIBRARY in Montes Claros is based on the following principles:
• Integration with the landscape and territorial articulation, limiting the height of the building to 3 floors, in order to minimize its impact on the landscape and maintain the building’s privacy;
• Low-cost construction system, the application of a low-cost construction system and easy construction, such as reinforced concrete molded on site, in order to radically reduce the cost of the work without losing environmental comfort;
• Environmental sustainability and full accessibility, full compliance with environmental sustainability requirements, such as the reuse of rainwater for toilets and lighting and natural lighting for all spaces; and meeting all the requirements of the NBR9050 accessibility standard to serve everyone.
• Assistance of the Program of necessity through the construction of a minimum area and the parameters of the UFMG Master Plan

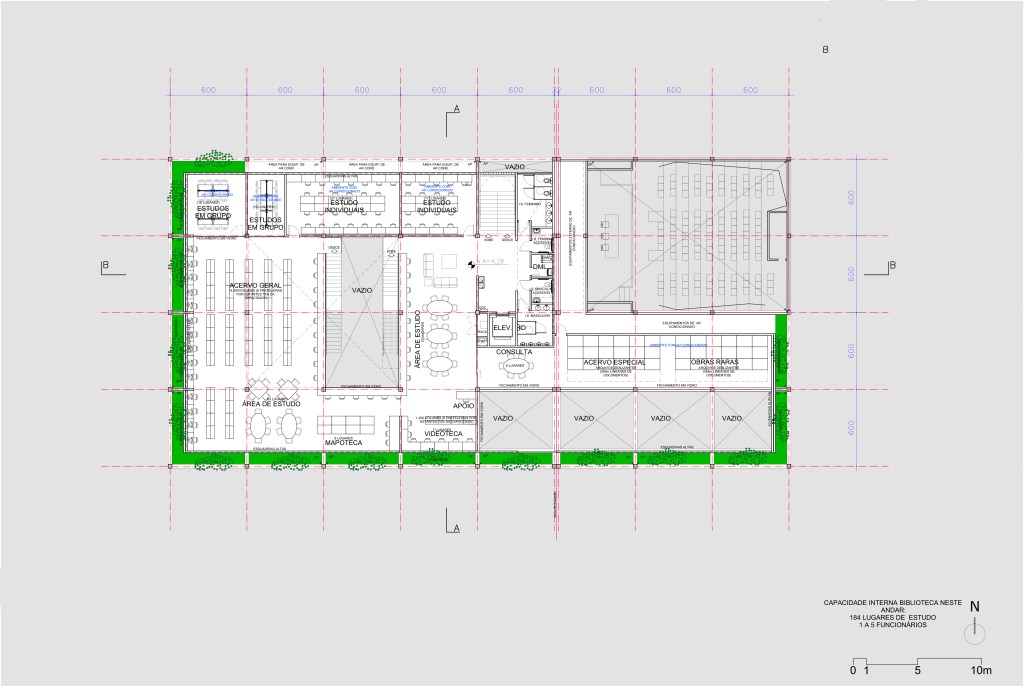
The structural solution seeks to adopt concrete construction complemented by metal structures in the roofs of the central atrium and auditorium. A 6.00m x 6.00m grid was drawn to organize the structure and limit the spans. Building built in 2 cores (Collection and Auditorium) has a structural expansion joint. It is also composed of blocks of stairs and elevators in addition to the upper level cover.









